|
88.99 millió Ft
|
|
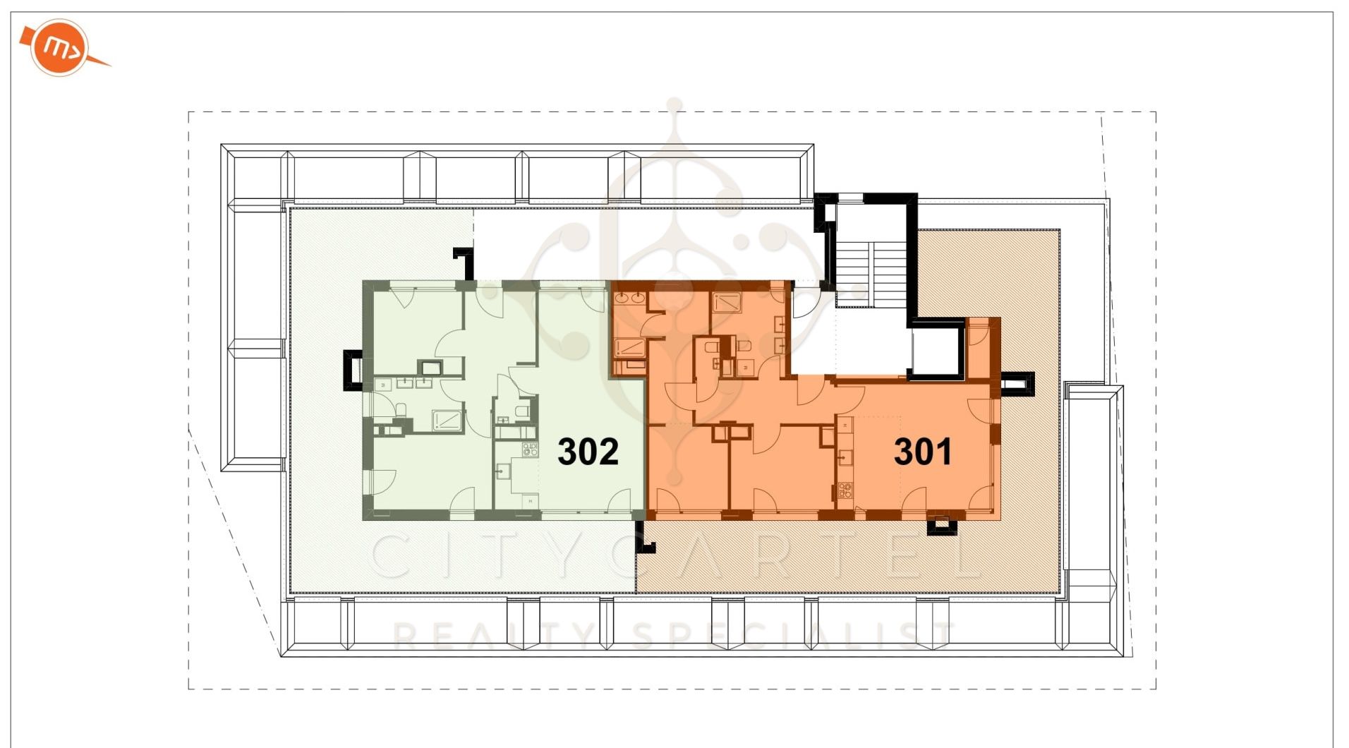
| Alapterület | 110 m2 |
| Szobák száma | 3 szoba |
| Építési mód | Tégla |
| Állapot | Új építésű |
| Emelet | 3. emelet |
További paraméterek
- Fűtés: Hőszivattyú
- Komfort: Összkomfort
Részletes leírás
Előértékesítés bevezető árakon megkezdődött!
Fonyód frekventált helyén, a méltán híres Árpád parttól 200 m-re elhelyezkedő, magas színvonalú kivitelezésben épülő, minőségi lakások eladók.
A CITY CARTEL INGATLANIRODA eladásra kínál egy 24 lakásos, 3 szintes, új építésű társasházban lévő, nappali + 1, valamint nappali + 2 hálószoba kialakítású, lakóingatlan besorolású lakásokat, melyek gondos és alapos tervezői munka eredményeként kerülnek megvalósításra.
Néhány jellemző:
- tervezés során fontos szempont volt a praktikum, a használhatóság, a fenntarthatóság,
- beépítendő anyagok kiválasztásánál a magas minőség elengedhetetlen szempont volt,
- földszinti lakások saját kertkapcsolattal, az emeletiek pedig erkélykapcsolattal rendelkeznek,
- egész évben használható lakások hűtését-fűtését egyaránt hőszivattyú szolgáltatja,
- az ingatlanok nyaralónak és állandó otthonnak is tökéletesek.
A lakásokhoz zárt, felszíni parkoló vásárolható, melynek ára 3 000 000 Ft/db.
Kulcsrakész állapotban, várhatóan 2027. II. negyedévében kerül átadásra.
Rugalmas fizetési ütemezés.
Beruházó számos referencia munkával rendelkezik.
További kérdések esetén állok rendelkezésére a hét bármely napján.
Irodáink:
8600 Siófok, Fő tér 6. (Sió Pláza -1. szint)
8640 Fonyód, Ady Endre u. 5. (Balaton Áruház földszint)
8638 Balatonlelle, Rákóczi út 276.
Kövess minket Facebook-on is: @citycartelbalaton!

