Eladó Téglalakás, Cegléd, Hívja a tulajdonost!
#698422308
|
59 millió Ft
|
|
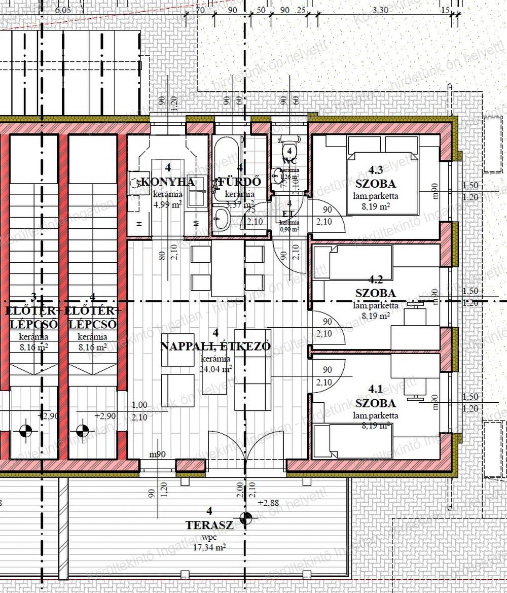
| Alapterület | 70 m2, 100 m2-es telken |
| Szobák száma | 4 szoba |
| Építési mód | Tégla |
| Állapot | Új építésű |
| Emelet | 1. emelet |
További paraméterek
- Kilátás: Kertre néző
- Fűtés: Hőszivattyú
- Szintek száma: 2
- Komfort: Összkomfort
- Energetika: A+
Részletes leírás
Hirdetünk ön helyett!
Az ingatlan közvetlenül a tulajdonostól eladó, elérhetősége: Egressi Zsolt +36309437452
Cegléden, új utcában, új lakóparkban épülő, 4 lakásos társasház 1. emeletén 70 m²-es, 4 szobás, erkélyes (13 nm), kb. 100 nm kizárólagos használatú kerttel és a társasház udvarán belül egy darab, burkolt kocsibeállóval rendelkező tégla lakás eladó.
A lakás nappalija déli fekvésű, a lakás hőszivattyús fűtésű, A+ energetikai besorolású.
Az építkezés folyamatban van, várható átadás: 2025.11.30.

