További paraméterek
- Kilátás: Utcára
- Fűtés: Távfűtés
- Bútorozottság: Bútorozott
- Szintek száma: 10
- Komfort: Összkomfort
- Internet: Optikai
- Akadálymentesítés: Részben akadálymentesített
Részletes leírás
AZONNAL KÖLTÖZHETŐ PANELLAKÁS ADYVÁROSBAN
Eladó egy kiváló adottságokkal rendelkező második emeleti panellakás Győr Adyvárosban, mely ideális választás lehet családoknak vagy fiatal pároknak.
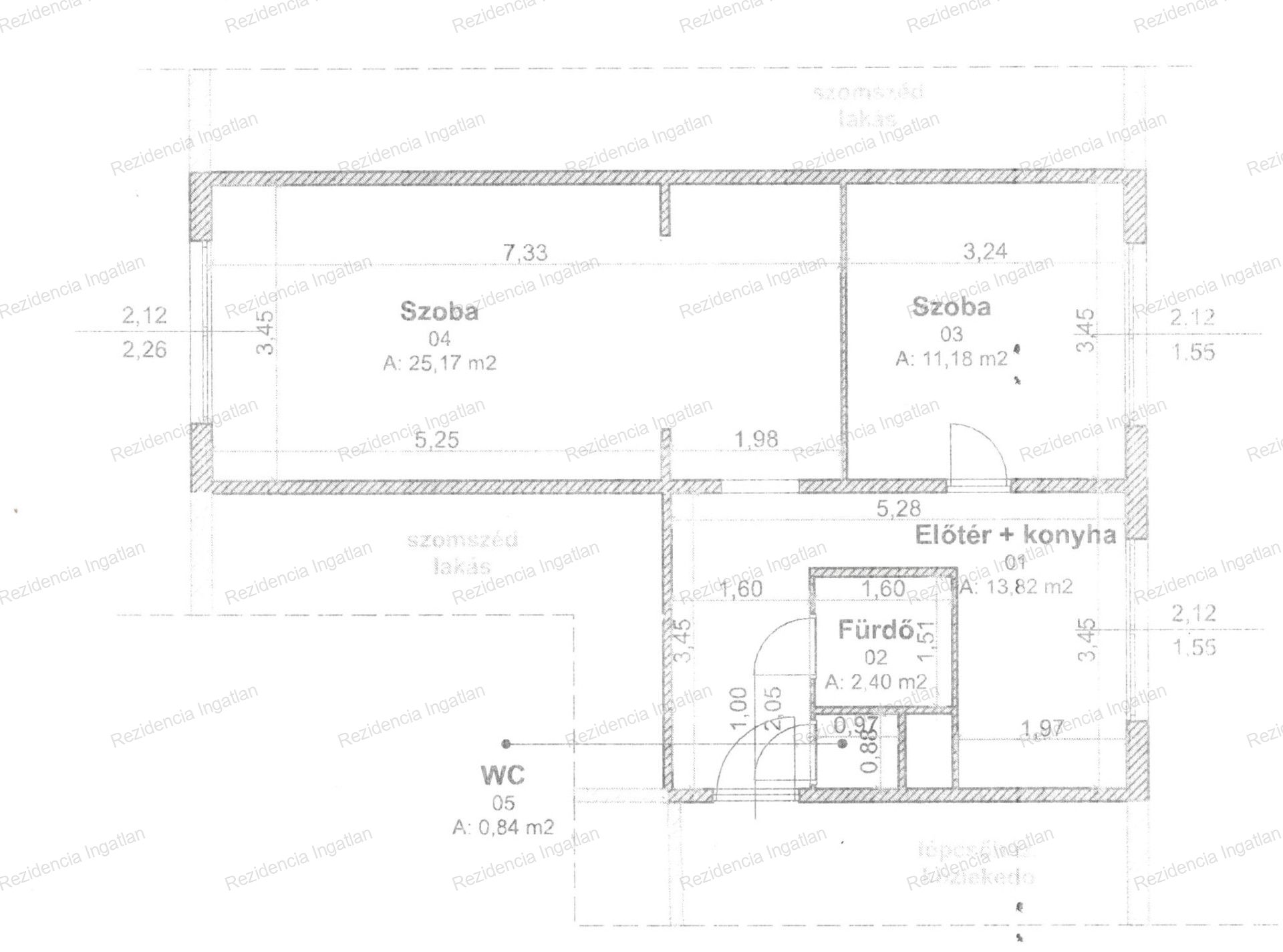
Az ingatlan alapterülete 53 négyzetméter, két szoba hallos kialakítású és jól kihasználható teret biztosít.
Az épület 1971-ben épült, az állapota jó, ugyan nem panelprogramos még, de az egész épületben ki lettek cserélve a strangok és a központi villanyhálózat. A lakásban műanyag nyílászárók vannak beépítve és a nappali ablakain redőny is van. A földszinten tartozik a lakáshoz egy ÖNÁLLÓ kb3nm nagyságú tároló.
A fűtést távfűtés biztosítja, a komfortfokozat összkomfortos, tehát minden szükséges kényelem adott. Az ingatlan bútorozott, gépesített és azonnal költözhető. Villanyhálózat eredeti azonban modern kapcsolótábla lett beépítve és Fi relé is.
Rendezett és tiszta otthon, kettő szobával és igényes konyhával valamint vizes blokkal, befektetésnek vagy saját otthonnak tökéletes lehet.
A parkolás utcán, de fizetős övezetben lehetséges, az ingatlan részben akadálymentesített, így különböző igényekhez is alkalmazkodik.
Az irányár 47 800 000 forint, amely a környék adottságait és az ingatlan értékét figyelembe véve kedvező lehetőséget kínál.
Ne hagyja ki ezt az ajánlatot, hiszen egy remek otthonra lelhet Győr szívében!

