| 
                                 
115 millió Ft                                 
                             | 
                        |
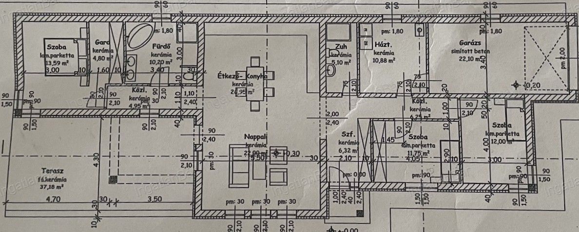
| Alapterület | 135 m2, 1 600 m2-es telken | 
| Szobák száma | 4 szoba | 
| Építési mód | Tégla | 
| Állapot | Újszerű | 
| Emelet | nincs megadva | 
További paraméterek
Azonnal költözhető
CSOK igényelhető
Jó közlekedéssel
Otthon Start 3%-os hitellel
Zöldövezeti- Kilátás: Udvari
 - Fűtés: Padlófűtés
 - Komfort: Összkomfort
 
Részletes leírás
Nyíregyháza Oros városrészében újszerű családi ház
Eladó Nyíregyháza Oros városrészében egy újszerű, téglaépítésű családi ház, amely tökéletes választás lehet családok számára. Az ingatlan alapterülete 135 m2, amely négy tágas szobát foglal magában, így bőséges teret biztosít a kényelmes életvitelhez.
Az épület 2021-ben készült el, így a modern kialakítás és a korszerű anyagok garantálják a hosszú távú megbízhatóságot.
A házhoz tartozó telek 1 600 négyzetméteres, amely lehetőséget ad a szabadidős tevékenységekre és a kertészkedésre egyaránt. A fűtést padlófűtés biztosítja, emellett kondenzációs kazán is rendelkezésre áll, ami gazdaságos és környezetbarát megoldás. A kellemes hőmérsékletet saját split klíma is segíti, így a nyári melegekben sem kell aggódni a komfortérzet miatt.
Az ingatlan összkomfortos, ami azt jelenti, hogy minden kényelmi szempontnak megfelel, ideális választás azok számára, akik a modern életstílust keresik. Az udvari kilátás nyugtató hatással bír, tökéletes helyszínt teremt a pihenéshez. A parkolás a garázsban megoldott, így a járművek biztonságban tudhatók.
Az irányár 115 000 000 Ft, és ha Ön is egy olyan otthonra vágyik, ahol a kényelem és a modernitás találkozik, ne habozzon, vegye fel velünk a kapcsolatot, hogy megmutathassuk ezt a kivételes lehetőséget!
Balla Anett
Ingatlan&Bankbár

                                