| 
                                 
94.9 millió Ft                                 
                             | 
                        |
| Alapterület | 90 m2, 344 m2-es telken | 
| Szobák száma | 3 szoba | 
| Építési mód | Tégla | 
| Állapot | Új építésű | 
| Emelet | nincs megadva | 
További paraméterek
Erkélyes/teraszos
Kertkapcsolatos
Otthon Start 3%-os hitellel
Zöldövezeti- Kilátás: Vegyes
 - Fűtés: Padlófűtés
 - Bútorozottság: Bútorozatlan
 - Szintek száma: 1
 - Komfort: Összkomfort
 
Részletes leírás
Új építésű családi ház, csendes környezetben, a Balatontól 10 perc sétatávolságra.
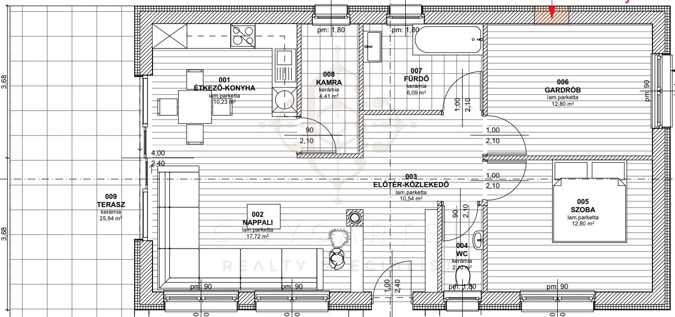
A CITY CARTEL INGATLANIRODA eladásra kínál Balatonlellén, lakóövezeti részen, egy 344 m2 nagyságú telken elhelyezkedő, 90 m2 lakóterületű, 1+2 szobás, téglából épült, új építésű családi házat.
A megjelölt ár a kulcsrakész készültségre vonatkozik. Amennyiben Ön szeretné saját igényeinek megfelelően befejezni, lehetőség van az ingatlant ebben az állapotában is megvásárolni.
Bosztását tekintve egy amerikai konyhás nappali + étkező egy légtérben, kettő hálószoba, előszoba, WC, tágas fürdőszoba, háztartási helyiség, illetve egy terasz került benne kialakításra.
Víz, villany, csatorna közművekkel rendelkezik.
Fűtését elektromos padlófűtés, illetve hűtő-fűtő klímák biztosítják. A nappaliba egy kémény is beépítésre került, tehát lehetőség van kandallós fűtésre is.
Parkolásra a zárt udvarban, két autó számára van lehetőség.
Nyaralónak, állandó lakhatásra egyaránt ajánlott.
További információkért írjon, vagy hívjon, a hét bármely napján az alábbi elérhetőségeim egyikén!
Irodáink: 
8600 Siófok, Fő tér 6. (Sió Pláza -1. szint)
8640 Fonyód, Ady Endre u. 5. (Balaton Áruház földszint)
8638 Balatonlelle, Rákóczi út 276.
Kövess minket Facebook-on is: @citycartelbalaton!

                                